Two-Story House with a Clinker Brick Façade

Two-Story House with a Clinker Brick Façade

Dimensions and Areas

Floor Area / Total Area: 1,701 / 1,764 sq. ft. (158.1 / 163.9 m²)

Building Footprint: 1,830 sq. ft. (170.0 m²)

Construction Volume: 27,127 cu. ft. (768 m³)

Building Height: 28.5 ft. (8.7 m)

Roof Pitch: 22°

Roof Area: 1,475 sq. ft. (137 m²)

First Floor (1,024 / 1,086 sq. ft. or 95.1 / 100.9 m²):

Garage: 248 sq. ft. (23.1 m²)

Boiler Room: 98 sq. ft. (9.1 m²)

Bedroom: 128 sq. ft. (11.9 m²)

Living Room: 276 sq. ft. (25.6 m²)

Kitchen: 82 sq. ft. (7.6 m²)

Bathroom: 51 sq. ft. (4.7 m²)

Foyer: 94 sq. ft. (8.7 m²)

Hallway: 47 sq. ft. (4.4 m²)

Terrace: 63 sq. ft. (5.9 m²)

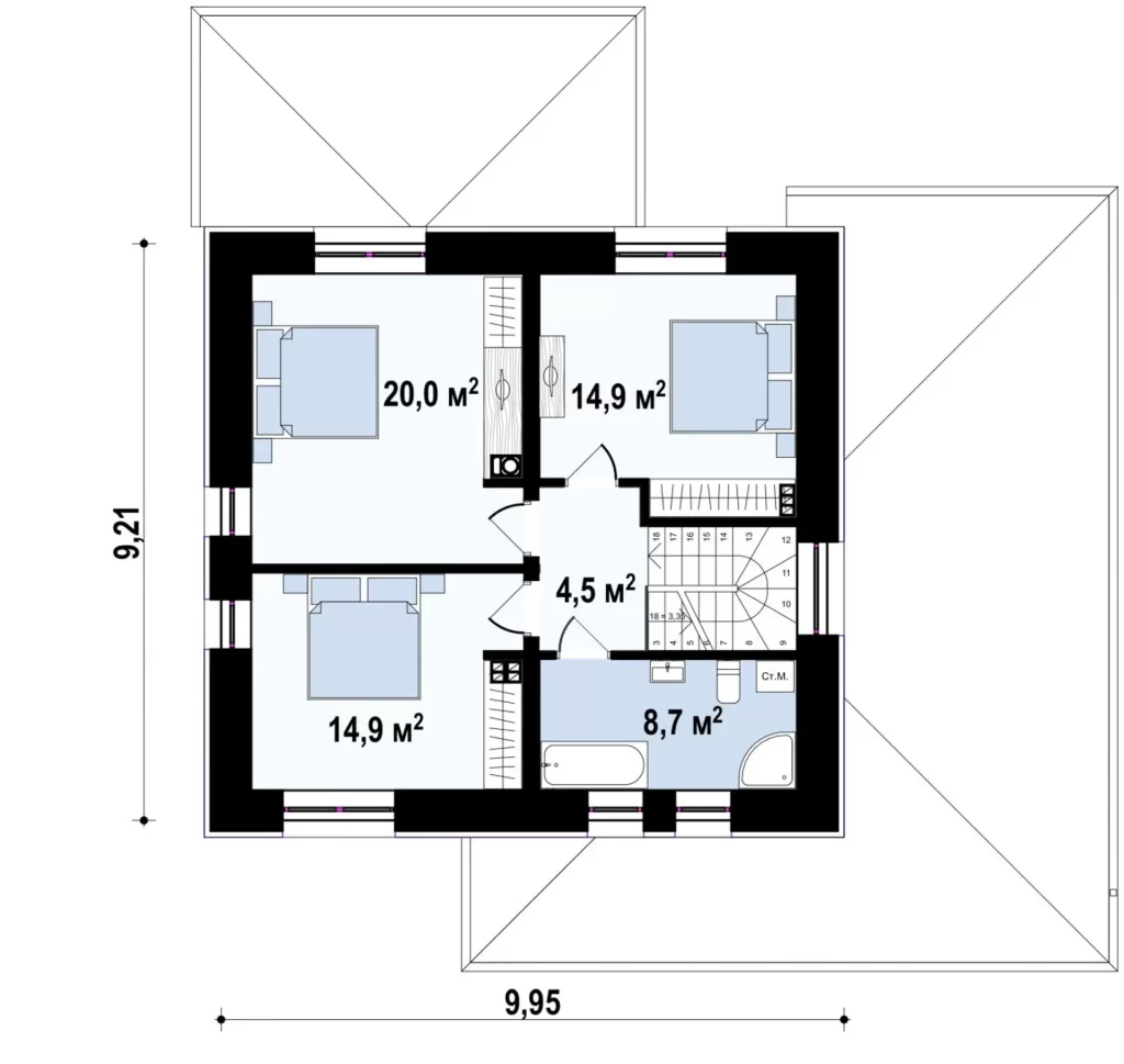
Second Floor (678 sq. ft. or 63.0 m²):

Bedroom 1: 215 sq. ft. (20.0 m²)

Bedroom 2: 160 sq. ft. (14.9 m²)

Bedroom 3: 160 sq. ft. (14.9 m²)

Bathroom: 94 sq. ft. (8.7 m²)

Hallway: 48 sq. ft. (4.5 m²)

Construction Technology

Foundation Type: Monolithic strip foundation

Roofing Options: Cement-sand tile, metal tile, or ceramic tile

Wall Construction: Masonry

Ceiling Type: Monolithic concrete

Functional Description

This project features a modern two-story house with an elegant clinker brick façade.

Key Features:

1. Spacious Living Area:

The large living room features expansive windows and opens onto a beautiful terrace overlooking the backyard, creating the perfect space for family gatherings and entertaining guests.

2. Convenient Garage Access:

The entryway includes a large coat closet and provides direct access to the garage, ensuring the family doesn’t have to go outside to get to their car—especially valuable during bad weather.

3. First-Floor Flexibility:

The first floor includes an additional bedroom and a full bathroom, ideal for families with elderly members, small children, or frequent guests. This room can also serve as a guest bedroom.

4. Private Second-Floor Bedrooms:

The second floor is designed as a private zone with three comfortable bedrooms and a spacious shared bathroom.

Versatility and Appeal:

This home is perfect for families with two to three children. Its modern exterior design, simple building shape, and multi-pitched roof make it an excellent option for construction in a variety of locations.

Lot and Facade Specifications

Recommended Lot Dimensions:

• Width: 72 ft. (21.95 m)

• Length: 72 ft. (21.95 m)

Facade Width: 46 ft. (13.95 m)

This project offers an ideal balance of style, practicality, and comfort, making it an excellent choice for families looking for a functional and aesthetically pleasing home.

Related Posts

Leave a Reply