Dimensions and Areas
• Living Area / Total Area: 1,689 / 1,747 sq. ft. (156.9 / 162.3 m²)
• Building Footprint: 1,678 sq. ft. (155.9 m²)
• Construction Volume: 34,617 cu. ft. (980 m³)
• Building Height: 28.9 ft. (8.8 m)
• Roof Pitch: 25°
• Roof Area: 2,386 sq. ft. (221.7 m²)

First Floor (963 / 1,000 sq. ft. or 89.5 / 92.9 m²):
• Foyer: 44 sq. ft. (4.1 m²)
• Living Room: 263 sq. ft. (24.4 m²)
• Kitchen: 133 sq. ft. (12.4 m²)
• Bathroom: 24 sq. ft. (2.2 m²)
• Hallway: 58 sq. ft. (5.4 m²)
• Office / Guest Room: 131 sq. ft. (12.2 m²)
• Second Hallway: 37 sq. ft. (3.4 m²)
• Garage (One-Car): 208 sq. ft. (19.3 m²)
• Terrace: 36 sq. ft. (3.4 m²)
• Boiler Room: 66 sq. ft. (6.1 m²)

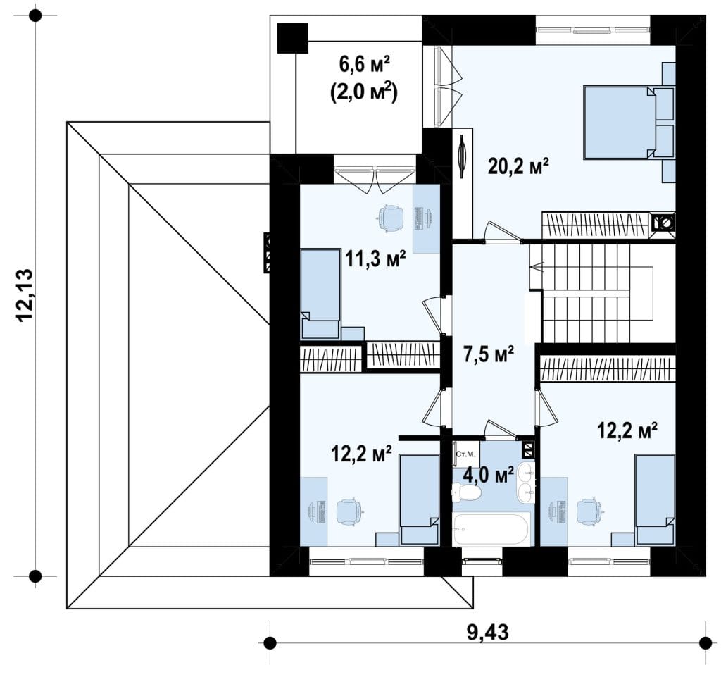
Second Floor (725 / 747 sq. ft. or 67.4 / 69.4 m²):
• Hallway: 81 sq. ft. (7.5 m²)
• Bedroom 1: 131 sq. ft. (12.2 m²)
• Bathroom: 43 sq. ft. (4.0 m²)
• Bedroom 2: 131 sq. ft. (12.2 m²)
• Bedroom 3: 122 sq. ft. (11.3 m²)
• Balcony: 22 sq. ft. (2.0 m²)
• Master Bedroom: 217 sq. ft. (20.2 m²)

Construction Technology
• Foundation Type: Monolithic strip foundation
• Roofing: Cement-sand tiles / Metal roofing / Ceramic tiles
• Building Material: Masonry
• Floor Structure: Monolithic concrete slabs

Functional Description
This two-story house project features a brick-finished facade and is designed to combine classic architecture with a modern, elegant color scheme. The balanced proportions and reserved exterior aesthetics make this home an attractive choice for homeowners of all ages.
First Floor Features:
• The open-plan living area includes a spacious living room and a semi-separated kitchen, ideal for those who prefer a quieter cooking space.
• A covered terrace is accessible from both the kitchen and the living room, providing a comfortable outdoor space facing the garden.

• A large fireplace in the living area enhances the cozy, welcoming ambiance.
• A small additional room on this floor can serve as an office or guest bedroom.
• The garage is seamlessly integrated into the home, offering convenient access.
Second Floor Features:
• The private living quarters are located upstairs, ensuring privacy and comfort.
• The master bedroom is the largest room on this floor, offering a comfortable retreat.
• Two of the bedrooms have direct access to a shared balcony, adding a pleasant outdoor element to the design.

This practical and stylish home is designed for a large family, offering both functionality and a refined appearance.
Recommended Lot Size:
• Width: 64.7 ft. (19.73 m)
• Depth: 75.9 ft. (23.13 m)
• Facade Width: 45.1 ft. (13.73 m)

