Dimensions and Areas
• Living Area / Total Area: 2,147 / 2,392 sq. ft. (199.5 / 222.3 m²)
• Building Footprint: 2,460 sq. ft. (228.5 m²)
• Construction Volume: 41,325 cu. ft. (1,170 m³)
• Building Height: 30.5 ft. (9.28 m)
• Roof Pitch: 25° / 16°
• Roof Area: 2,983 sq. ft. (277.09 m²)

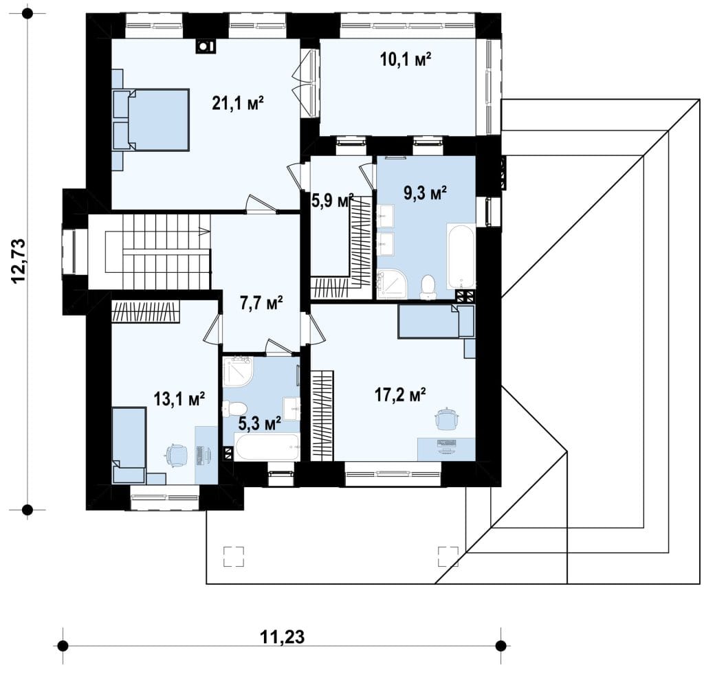
Attic / Second Floor (857 / 966 sq. ft. or 79.6 / 89.7 m²):
• Bedroom 1: 227 sq. ft. (21.1 m²)
• Bedroom 2: 141 sq. ft. (13.1 m²)
• Bedroom 3: 185 sq. ft. (17.2 m²)
• Bathroom 1: 100 sq. ft. (9.3 m²)
• Bathroom 2: 57 sq. ft. (5.3 m²)
• Walk-in Closet: 64 sq. ft. (5.9 m²)
• Hallway: 83 sq. ft. (7.7 m²)
• Terrace: 109 sq. ft. (10.1 m²)

First Floor (1,291 / 1,427 sq. ft. or 119.9 / 132.6 m²):
• Foyer: 80 sq. ft. (7.4 m²)
• Garage (One-Car): 312 sq. ft. (29.0 m²)
• Boiler Room: 83 sq. ft. (7.7 m²)
• Living Room: 303 sq. ft. (28.2 m²)
• Kitchen: 183 sq. ft. (17.0 m²)
• Pantry: 39 sq. ft. (3.6 m²)
• Office / Guest Room: 152 sq. ft. (14.1 m²)
• Bathroom: 40 sq. ft. (3.7 m²)
• Hallway: 42 sq. ft. (3.9 m²)
• Utility Room: 57 sq. ft. (5.3 m²)
• Terrace: 137 sq. ft. (12.7 m²)

Construction Technology
• Foundation Type: Monolithic strip foundation
• Roofing: Cement-sand tiles / Metal roofing / Ceramic tiles
• Building Material: Masonry
• Floor Structure: Monolithic concrete slabs
Functional Description
This two-story brick-finished home features a distinctive and modern architectural design, with a complex roof structure, high-quality natural materials, and a harmonious integration into both urban and suburban landscapes.
Key Features:

• Thoughtful interior zoning ensures a clear separation of functional areas, enhancing convenience and comfort.
• The open-concept living space on the first floor benefits from large panoramic windows, creating a bright and inviting atmosphere throughout the day.
• An additional room on the first floor can be used as a guest bedroom or a space for elderly family members, eliminating the need for frequent stair use.
• The spacious living room includes a large fireplace, serving as both a cozy gathering spot and an additional heat source for the home.
This luxurious and spacious cottage is designed for those who seek a well-planned interior layout and a sophisticated, prestigious exterior.

